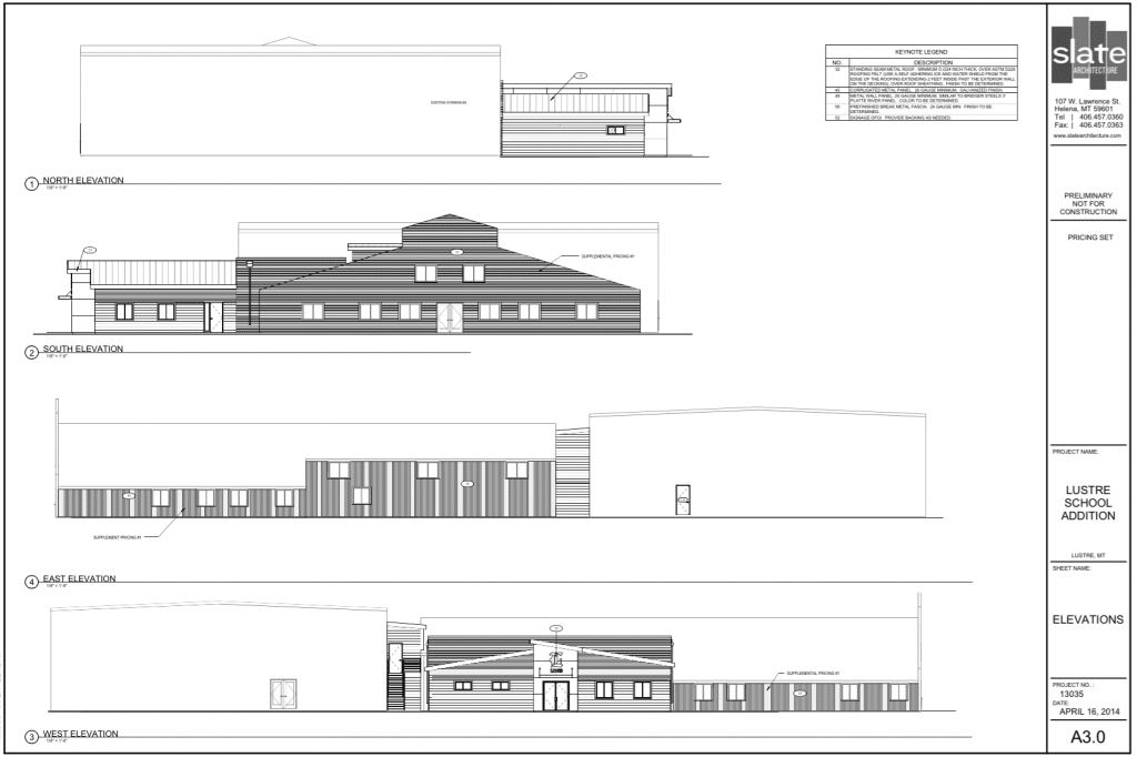
LCHS West Entry Renovation Update

The LCHS Board is still proposing a renovation to the west end entry into the school building. This past May the bid we received was over double what we had received in donations towards the project. The board decided to postpone the project one year and work on it this summer and fall to try to bring the cost down, or to refocus the project.
Currently we have decided to keep the size and scope of the project mostly the same. We are trying to lower the cost by adjusting the plan, but we still will need more financial support for the project if it is to move forward. Please consider a special gift to LCHS this year end.
As a reminder here are the areas of concern that this renovation will be addressing:
- The recurring water leaks in the west side entry and the need for new siding on the existing school building.
- The inadequacy of our current public restrooms to meet ADA standards. The new restrooms would be larger and contain handicap access to the facilities.
- A complete fire escape from the auditorium. This would include a breezeway from the auditorium to the gym.
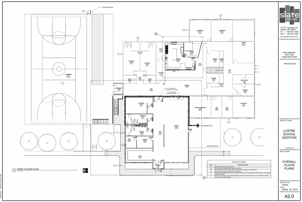
- A Commons Room would have tables and chairs alongside the existing cafeteria area. This would expand the cafeteria area if needed, provide a meeting place on the ground floor for public meetings, awards nights, etc., as well as provide a second study/commons area for the dorm when we need the overflow capacity of a nearly full dorm.
- The renovation would also provide a second ‘changing room’ for our visitors during the combined girls and boys basketball seasons. This would greatly improve the visiting teams experience coming to play here and give them better options to split up their teams.
- There would be an electrical upgrade as part of this project to alleviate the problems experienced in the past with high demand periods.
In short, a much needed facelift would be given to the LCHS entrance that most visitors to our school use for ball games, graduation ceremonies, AWANA, etc.
We need your support. We are working to get the estimated cost down around $600,000. So far over $330,000 has been received and earmarked for the project. We would like to thank all those who have already given. Now we need additional support or this project will be cut back and some needs will not be met. The board will also be seeking your support in time and talents as we pursue every avenue to bring the cost of the project down.
Please consider whether you can donate a special year end gift for this project. This project is the largest renovation to the LCHS campus since the dorm was completed in the late 70’s. The board has committed to not borrow for this project, but only to renovate as the funds are available. Our goal is to get this project underway this spring; therefore we are seeking to reach our goal for this project by the end of December. Would you be willing to help finance this project by giving to LCHS today? Thank you for your continued prayers and support for LCHS.



